Musée sous-marin – Lorient La Base

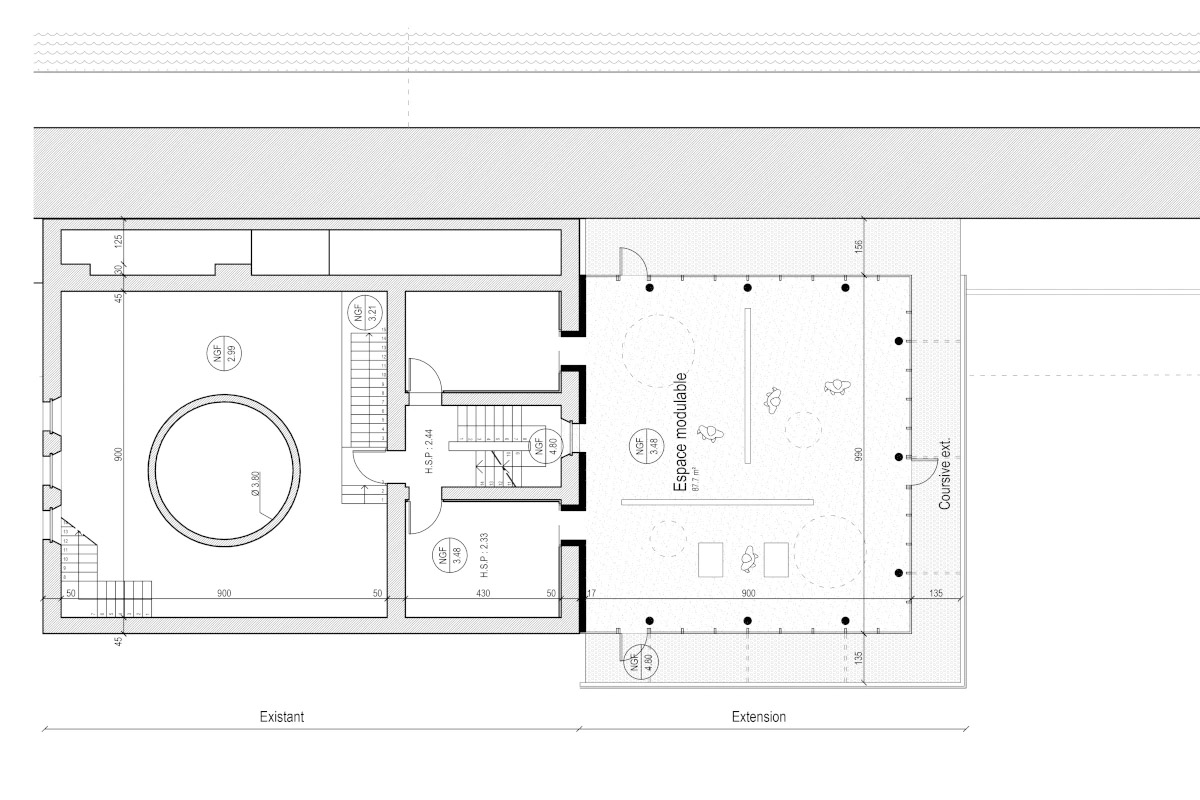
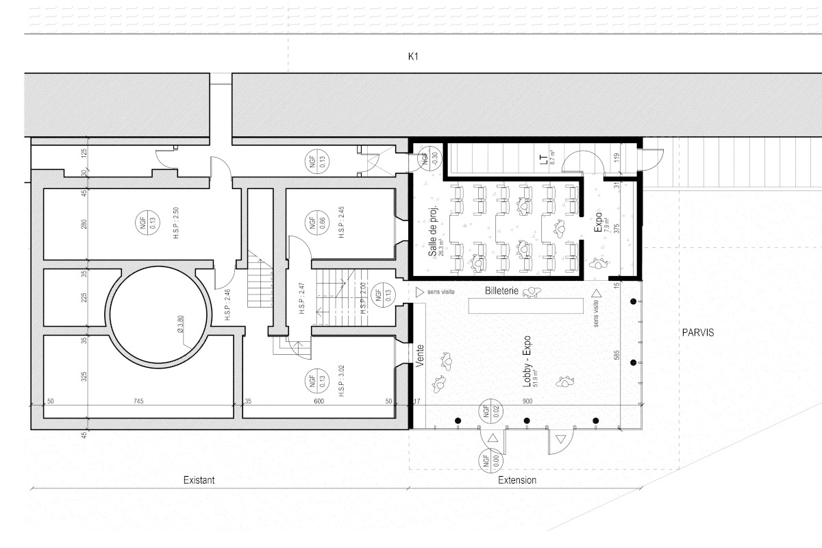
Programme : Extension et réhabilitation d’un musée, comprenant : accueil, magasin, salles d’expositions, salle de projection.
Surface : 400 m²
Coût : 400 000 € HT
Avancement : FAISABILITE (2019)
MOA : LES AMIS DU MUSEE
MOE : ANDREATTA LE PAVEC ARCHITECTES
Le musée existant est implanté dans le Bunker K1 de l’ancienne base des sous-marins, à Lorient, au sein du plus vieux centre de sauvetage pour sous-marinier au monde. L’ex-tauchtopff allemand fut rebaptisé « Tour Davis » par la Marine Nationale après la guerre.
Le site est exceptionnel mais le musée manque de visibilité. Il nous faut donc trouver une image forte, un signal marquant à implanter sur le site de Lorient La Base. L’extension et la nouvelle entrée du musée seront « un cube d’eau » qui vient s’accoler au bunker, pour ouvrir une brèche vers un monde sous-marin.







