Le Lob – Ploemeur

Programme : Complexe sportif dédié au padel
Surface : 1652 m²
Avancement : Livré en Juillet 2025
MOA : LE LOB
MOE : ANDREATTA LE PAVEC ARCHITECTES (architecte mandataire), ARMOR ECONOMIE (économiste), BECOME 29 (fluides), SOFRESID ENGINEERING (structure)
CREDIT PHOTO : Aurelien Chen Photographie
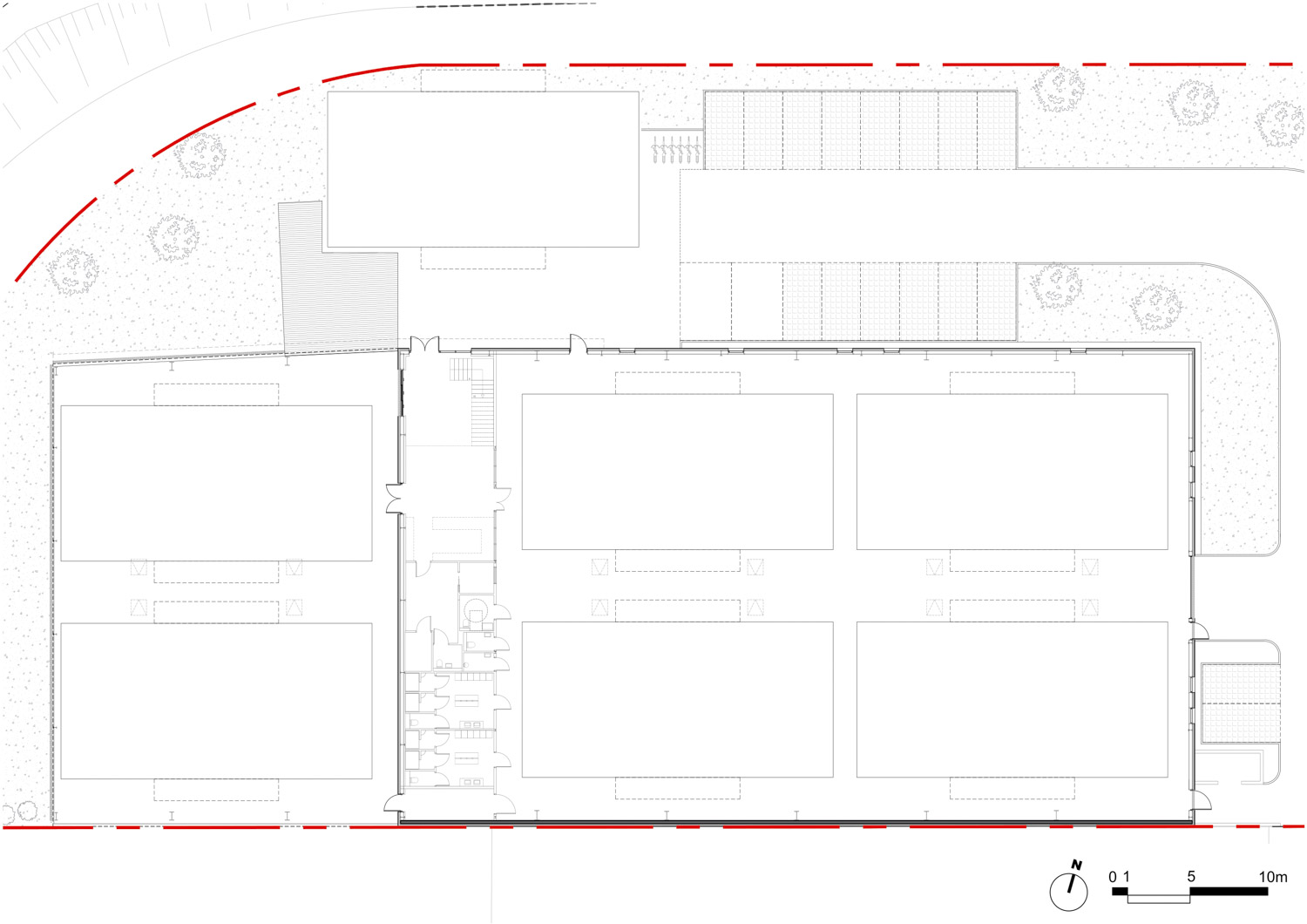
Le terrain se situe sur le parc d’activité de Kergantic sur la commune de Ploemeur.
Le projet consiste en la construction d’un bâtiment destiné à recevoir des pistes de Padel.
Le bâtiment principal clos et couvert abrite 4 pistes de Padel, le club house, les vestiaires et la salle de sport. Une structure couverte et semi-fermée abrite 2 pistes de Padel supplémentaires.
Pour optimiser l’espace de la parcelle, la construction est implantée en limite séparative de la partie Sud. L’implantation du bâtiment se fait dans le sens de la longueur de la parcelle.
Le bâtiment est de type industriel avec une ossature en charpente métallique.
Par sa fonction, les bâtiments comprennent une volumétrie simplifiée, fonctionnelle et d’une sobriété dans l’écriture architecturale. Ce nouveau bâtiment sera de type cubique.
Le bâtiment principal est revêtu de bardage métallique ocre brique avec des baies éclairantes verticales sur les façades.
La structure couverte sera revêtue du même bardage métallique mais non fermée en périphérie de la partie basse.
Une casquette auvent permettra d’identifier l’entrée du bâtiment et de souligner l’implantation des pistes Padel semi-couvertes.
Les espaces libres seront dédiés aux accès et stationnement des véhicules, à l’aménagement paysager suivant le règlement du parc d’activités, arbres à hautes tiges type chênes verts, pins maritimes ; haies séparatives avec parcelles voisines, une piste de Padel sur la partie Nord de la parcelle.
Un bassin de rétention et un bassin drainant seront implantés sous la voirie.
Les stationnement véhicules seront implantés en partie Nord avec matériaux drainants.






